Connecting Space ZHdK - Design
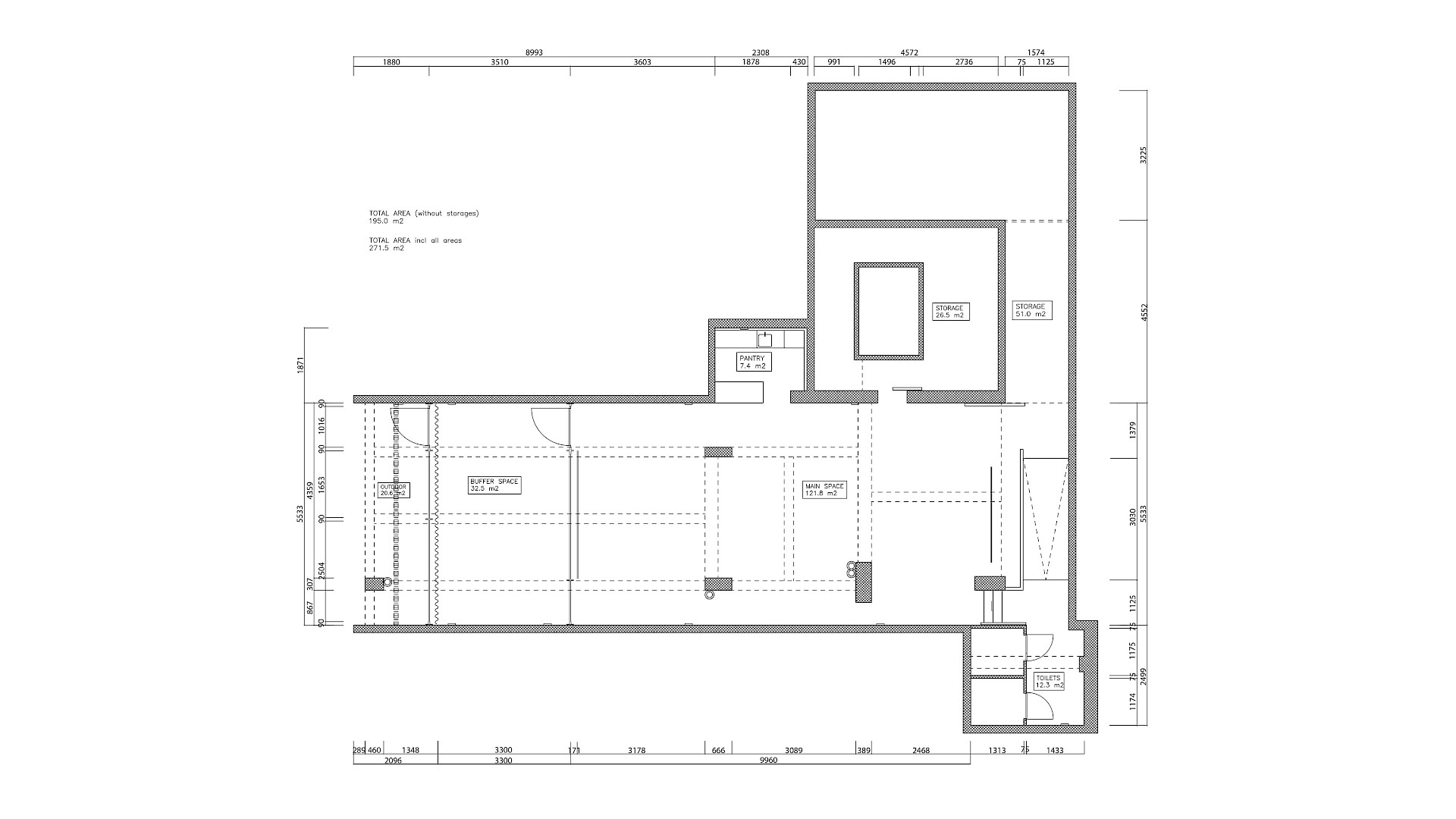
“Connecting Spaces Hong Kong – Zurich” was a design project for a transdisciplinary and transcultural art space project initiated by the Zurich University of the Arts, which acted as the Hong Kong branch of the art school. Located in the dense area of North Point, the ground-floor unit of a former mirror factory was conceived as a multifunctional platform for hosting a series of events related to arts education, such as workshops, seminars, exhibitions, and performances. The design of this space was an opportunity to test and reflect on the insights gathered during the “Hong Kong Back Lanes” research.
Location: North Point, Hong Kong
Completion date: 2015
Client: Zurich University of the Arts (ZHdK)
Authors: Géraldine Borio with Caroline Wüthrich
Assistants: Collin Shen, Sam Fu Shi Man, Pauline Paradis, Yuyu Ng - Photography: ng studio










