Lot 313 Residence - Design
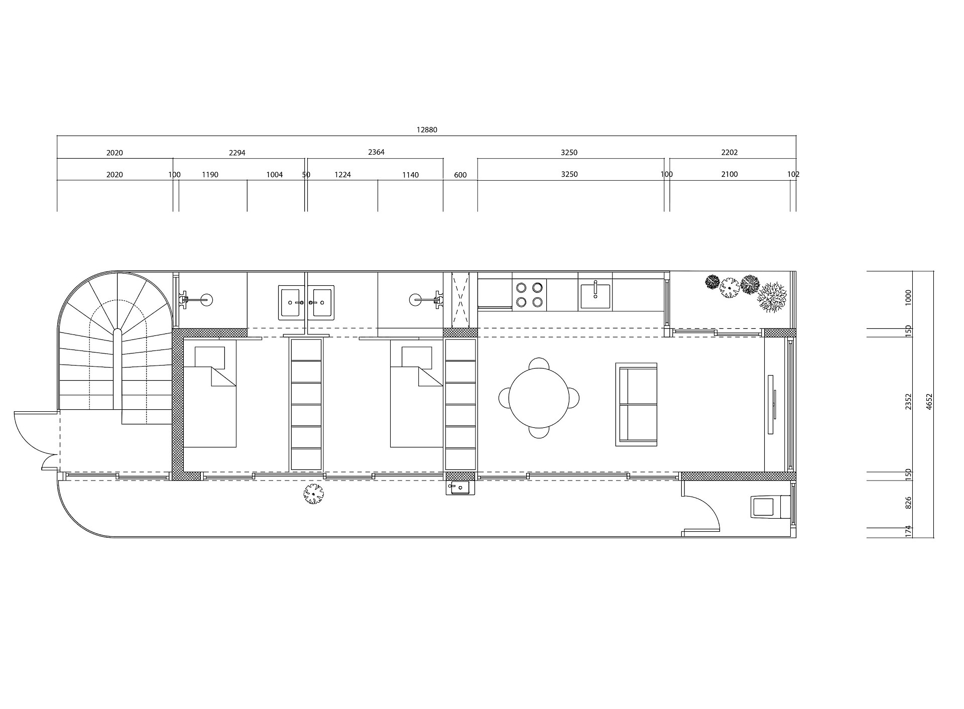
Lot 313 is a design project for a three-story apartment block on Peng Chau Island commissioned by a private client. Although the original plan envisaged one apartment per floor, the client requested enough flexibility to potentially occupy the top two floors himself, with his mother invited to live on the ground floor. This project was an opportunity to test at an architectural scale the learning gathered during the previous observation of liminal sites. A typical long, narrow shophouse parcel in Peng Chau village, the site is separated from its neighbor by a tiny lane and faces a retaining wall at the back. This configuration guided the interior layout of a building designed as an articulated threshold rather than as an object detached from its context.
Location: Peng Chau, Hong Kong
Completion date: 2023
Client: private
Authors: Géraldine Borio
with Jae Hyun Lim - Assistants: Keith Yu, Alan Cheun- Structural Consultant: Yasuhiro Kaneda Structure - Façade Consultant: BEAU Architects- Contractor: David Lam - Photography: Leon Xu Liang
Awards
Good Design Award (Japan, 2023) for the project Glass House in Peng Chau Island - Lot 313











