Parallel Lab Office - Design
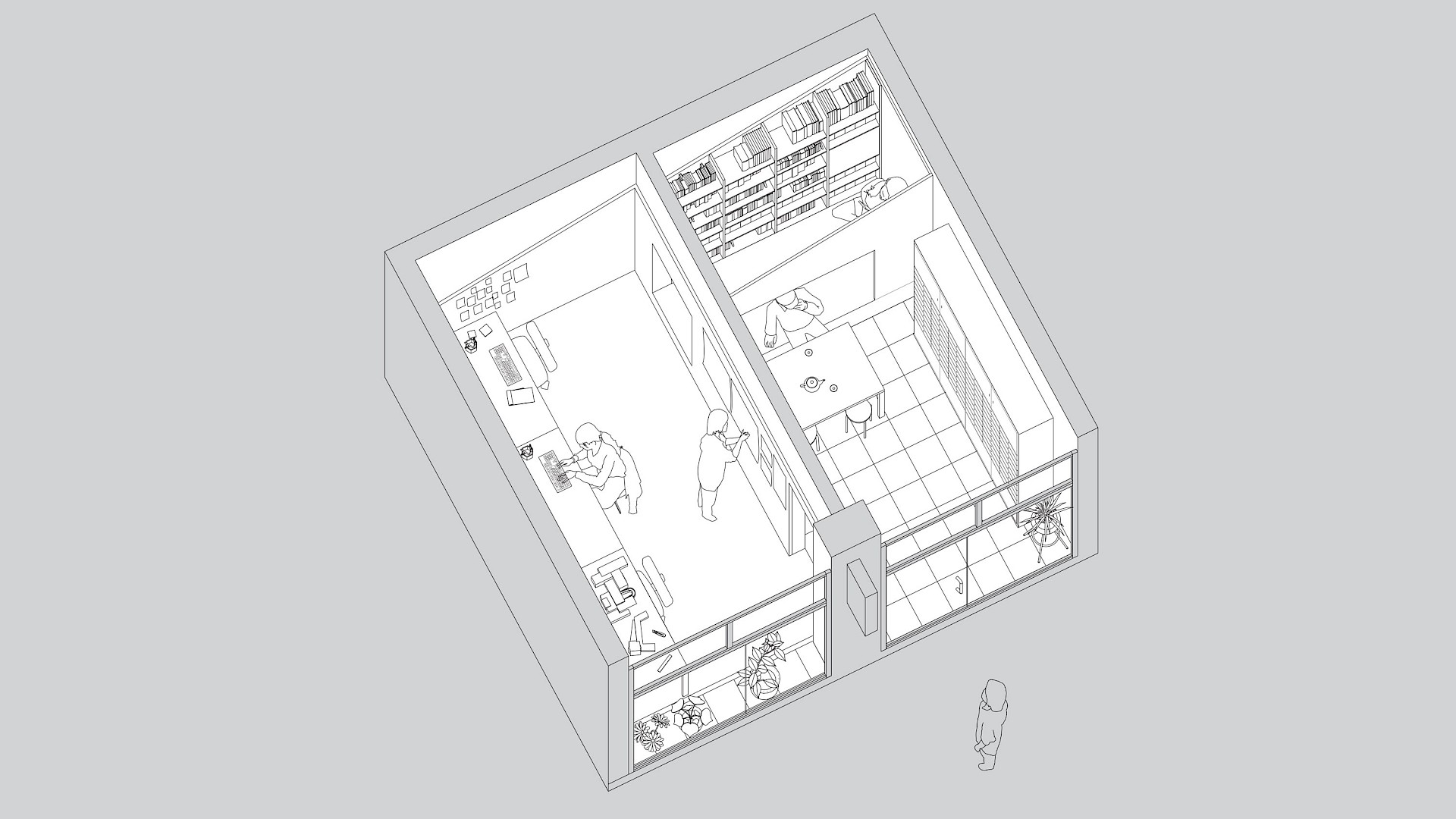
Parallel Lab Office is an 18 m² workplace project that rethinks subdivision in micro-spaces not as a limitation, but as a spatial asset. Developed within a former Chinese medicine shop, the design reinforces the original division of two units and transforms them into a sequence of compact, interconnected pocket spaces. Rather than a purely productive facility, the workspace environment provides the comfort of a home away from home. It integrates built-in wooden elements that define areas for work, display, storage, and rest. Walls become active surfaces for pin-ups and research, while changes in level and circulation create a varied and comfortable spatial experience.
Location: North Point, Hong Kong
Date: 2014
Client: Company
Authors: Géraldine Borio with Caroline Wüthrich






